duurzaamheid, leren, transformatie en restauratie Jeroen Schoots duurzaamheid, leren, transformatie en restauratie Jeroen Schoots

Horeca en Toerisme College

Projectoverzicht

Type / Schoolgebouw

Programma / onderwijs, horeca, kantoor

Opdrachtgever / ROC Midden Nederland

Adres / Newtonbaan, Nieuwegein

Oppervlak / 5955 m² renovatie, 1592 m² nieuwbouw

Jaar / 2018-2021

Partners / Studio Myrthe Schoots, Qonect, Gravitas

Beelden / Schoots Architecten, Jeroen Musch

HTC.gif
“De mooiste horecaschool van Nederland is open!”
— Horeca & Toerisme College ROCMN
 
 
 

Gastvrij

Na een ingrijpende ‘vernieuwbouwing’ van meer dan een jaar is het Horeca & Toerisme College van ROC Midden Nederland in Nieuwegein officieel geopend. In het hypermoderne onderwijsgebouw kunnen studenten en professionals uit de hospitalitybranche nog beter worden opgeleid voor de arbeidsmarkt of een vervolgopleiding. Het onderwijs speelt in op de laatste trends, ontwikkelingen en innovaties in de branche.

 
 

Trots

Met state-of-the-art faciliteiten als drie nieuwe keukens, een reis-inspiratieruimte, een brood bar, een coffee bar, vergaderruimtes, een leerrestaurant en een evenementenbureau is het college helemaal klaar voor de toekomst. Grenzeloos Gastvrij en ontmoeting staat hierbij centraal. Ontmoeting tussen studenten, docenten, bedrijven en gasten van het restaurant en de vergaderfaciliteiten. Suzanne Staal, directeur: “Ik ben ongelofelijk trots op onze nieuwe school. Voor onze studenten, docenten, medewerkers en het bedrijfsleven is dit een geweldige omgeving om opgeleid te worden en te werken. Ik dank iedereen die heeft meegewerkt om dit te realiseren vanuit de grond van mijn hart”.

 
 
HTC_05.jpg
 
 

Eigentijds

Met het nieuwe gebouw is het Horeca & Toerisme College helemaal klaar voor de toekomst en speelt het in op de laatste trends, ontwikkelingen en innovaties in de branche. In het nieuwe leerrestaurant, het interne leerwerkbedrijf, een International Office en de koffiebar kunnen studenten in een vertrouwde omgeving kennis en ervaring opdoen. Ook een eigentijdse foodtruck, moderne vergaderfaciliteiten, drie keukens en een reisinspiratieruimte hebben een prominente plek in de dienstverlening.

 
HTC_03.jpg
 

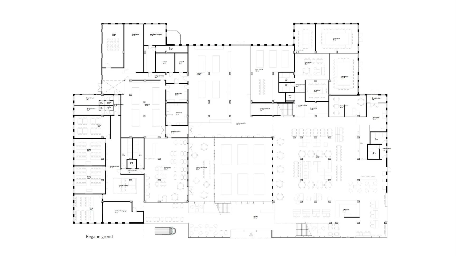
Gebouw
De opgave was om de locatie van het college te verbouwen tot een gastvrije leeromgeving. Het college was gevestigd in een oorspronkelijk kantoorpand wat niet geschikt was als school. Het pand was als een U gebouwd. Door de voorzijde van een transparante en ruimtelijk entree te voorzien kreeg het pand een compleet nieuwe aanblik, betere interne circulatie en gastvrij klimaat. De nieuwe carré vorm van het gebouw geeft het restaurant een promiment terras in de binnentuin. De binnentuin zorgt voor licht en groen voor het hele gebouw. Doordat we ook het interieur mochten ontwerpen is het een mooi geheel geworden waar de visie van de school overal in naar voren komt.

 
 
Meer lezen